[Ref: 603]. Villa with sea view for sale at Via Panoramica 49, Diamante (CS).
Price: €795,000
Basic Features:
This exclusive newly built villa, with its advanced technical features and wide-ranging potential, represents a rare opportunity in the Diamante real estate market. Suitable both as a primary residence and as an investment for hospitality, the property combines comfort, energy efficiency, and a prime location with sea views and proximity to the town center and beaches.
- 545 m2 commercial space
- 270 walkable m2
- 11 rooms
- 5 bathrooms
- Terrace. Balcony
- Built-in wardrobes
- Cantina
- Year of construction: 2024
- West, North, East, South
- Terreno 1,500 m2
- Garage

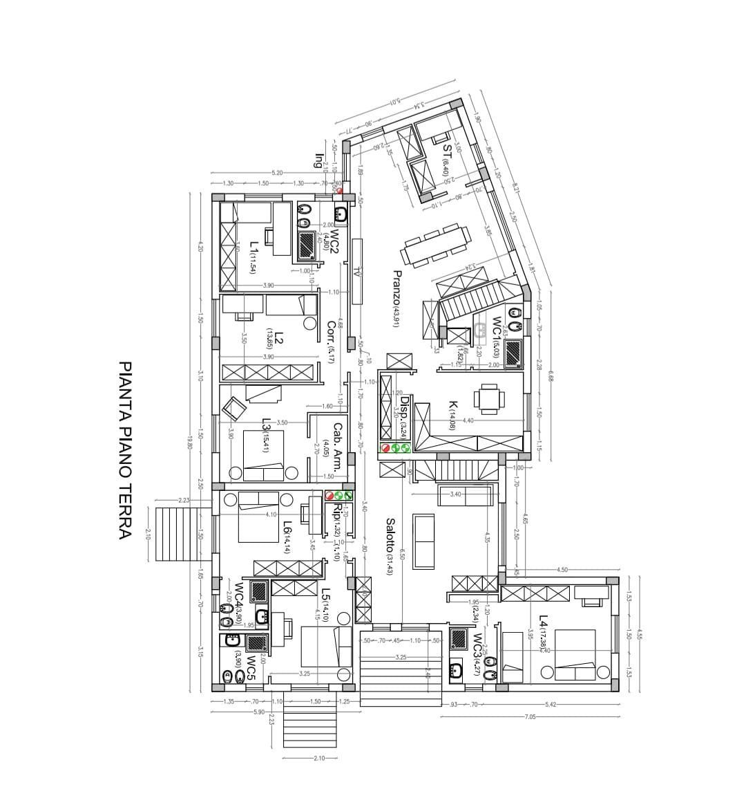
Description of the Environments
Composition of the Villa: Main Apartment: 3 Bedrooms Living Room Kitchen Storage Room Study 2 Bathrooms Secondary Apartment
SET UP FOR A B&B: 3 bedrooms, each with private bathroom, private garden, storage room, living area, solarium: 270 m2, basement (270 m2): multipurpose rooms, garage
General Details:
Land Area: 1500 sq m. Villa Area: 545 sq m. Floor: Single level, Entrance: Double driveway. View: Sea. Energy Efficiency: A
Heat Pump: Hot/Cold. Photovoltaic System, Solar Thermal System, Thermal Coating
Video intercom. "Horman" sectional garage door. "Schuco" thermal break fixtures. "Garofoli" internal doors. Electric blackout blinds (bedrooms only). Provisions: Mechanized air (VCM) Alarm system. Video surveillance. Fireplace. Oven. Potential: Divisible into two residential units. Use as a hospitality facility: Capacity of 16 beds.
Position:
Via Panoramica 49 and the sea is about 500 meters away,
Lamezia Terme Airport: 100 km; Naples Airport: 220 km












